舒適愜意的優質空間陸續誕生。
館內經過翻新整修!
1965年開幕以來,隨著時代持續轉變風貌的金太郎溫泉。
結合日本與西方品味的全新型態客房與概念餐廳等,
舒適愜意的優質空間陸續誕生。
保留超過半世紀以上的招牌溫泉,在翻新後的舒適空間內
享受悠然自得的住宿時光。
天然溫泉
享受源泉100%掛流式的奢華泡湯。
金太郎溫泉是由大地加熱後運來豐富熱水的天然溫泉。
混合鹽泉和硫磺泉,在日本屬於罕見的泉質。
客房
進入房間後,眼前就是寬敞的空間,令人忘卻了喧囂。
亦有2019年4月翻新的客房,可在此度過舒適而寧靜的時光。
- 所有客房皆有無線網絡
非吸煙
客房類型
- 別墅 峰之界
- 標準客房
-
更高等級的豪華樓層

現代日式
日式床型
有露天浴池的
現代日式日西式混合客房
有淋浴間的
現代日式日西式混合客房
有露天浴池的
套房
特別房型
-
日本旅館特有的雅致空間
![日式床型]()
日式床型
![日式客房]()
日式客房
![日西式混合客房]()
日西式混合客房
![單人房]()
單人房
![雙床房]()
雙床房
現代日式 日式床型
客房配置

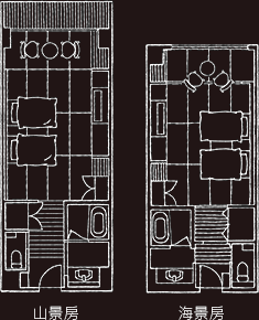
- 房間平面圖
-
![房間平面圖]()
| 地點 | 光風閣3樓 |
|---|---|
| 面積 | 日式客房16半坪(有浴缸) |
| 容納人數 | 2~6名 床最多可容納2人。3人可使用日式被褥。 |
| 其他 | 所有客房都禁止吸煙 ※館內設有吸煙區 |
客房設備・生活備品
| 設備 |
採用席夢思公司製造的床具 茶具(煮水壼、茶葉、茶點、冷水) 房間鑰匙 2支 電視 馬桶(西式:電腦馬桶)/冷氣/暖氣/冰箱/保險箱 |
|---|---|
| 生活備品 | 牙刷/洗髮精/潤髮乳/沐浴乳/毛巾/浴巾/吹風機/刮鬍刀/浴衣 |
有露天浴池的現代日式日西式混合客房
客房配置

- 房間平面圖
-
![房間平面圖]()
| 地點 | 光風閣4樓 |
|---|---|
| 面積 | 日式客房8半坪客廳+雙床房(露天風呂付)約43m² |
| 容納人數 | 4名 |
| 其他 | 所有客房都禁止吸煙 ※館內設有吸煙區 ※房間裡的露天浴池並非溫泉 |
客房設備・生活備品
| 設備 | 採用席夢思公司製造的床具 茶具(煮水壼、茶葉、茶點、冷水) 房間鑰匙 2支 電視 馬桶(西式:電腦馬桶)/冷氣/暖氣/冰箱/保險箱 |
|---|---|
| 生活備品 | 牙刷/洗髮精/潤髮乳/沐浴乳/毛巾/浴巾/吹風機/刮鬍刀/浴衣 |
有淋浴間的現代日式日西式混合客房
客房配置

- 房間平面圖
-
![房間平面圖]()
| 地點 | 光風閣4樓 |
|---|---|
| 面積 | 日式客房8半坪+雙床房(有淋浴間)約42m² |
| 容納人數 | 4名 |
| 其他 | 所有客房都禁止吸煙 ※館內設有吸煙區 |
客房設備・生活備品
| 設備 | 採用席夢思公司製造的床具 茶具(煮水壼、茶葉、茶點、冷水) 房間鑰匙 2支 電視 馬桶(西式:電腦馬桶)/冷氣/暖氣/冰箱/保險箱 |
|---|---|
| 生活備品 | 牙刷/洗髮精/潤髮乳/沐浴乳/毛巾/浴巾/吹風機/刮鬍刀/浴衣 |
有露天浴池的套房
客房配置

- 房間平面圖
-
![房間平面圖]()
| 地點 | 光風閣4樓 |
|---|---|
| 面積 | 日式客房12半坪+雙床房+客廳(露天風呂付)約87m² |
| 容納人數 | 6名 |
| 其他 | 所有客房都禁止吸煙 ※館內設有吸煙區 ※房間裡的露天浴池並非溫泉 |
客房設備・生活備品
| 設備 | 採用席夢思公司製造的床具 茶具(煮水壼、茶葉、茶點、冷水) 房間鑰匙 2支 電視 馬桶(西式:電腦馬桶)/冷氣/暖氣/冰箱/保險箱 |
|---|---|
| 生活備品 | 牙刷/洗髮精/潤髮乳/沐浴乳/毛巾/浴巾/吹風機/刮鬍刀/浴衣 |
特別房型
客房配置

- 房間平面圖
-
![房間平面圖]()
| 地點 | 光風閣4樓 |
|---|---|
| 面積 | 日式客房15半坪+雙床房+客廳(有浴缸)約84m² |
| 容納人數 | 6名 |
| 其他 | 所有客房都禁止吸煙 ※館內設有吸煙區 |
客房設備・生活備品
| 設備 | 採用席夢思公司製造的床具 茶具(煮水壼、茶葉、茶點、冷水) 房間鑰匙 2支 電視 馬桶(西式:電腦馬桶)/冷氣/暖氣/冰箱/保險箱 |
|---|---|
| 生活備品 | 牙刷/洗髮精/潤髮乳/沐浴乳/毛巾/浴巾/吹風機/刮鬍刀/浴衣 |
日式床型
客房配置

- 房間平面圖
-
![房間平面圖]()
| 地點 | 光風閣別館5樓・6樓 |
|---|---|
| 面積 | 日式客房15半坪(有浴缸) |
| 容納人數 | 2~6名 床最多可容納2人。3人可使用日式被褥。 |
| 其他 | 所有客房都禁止吸煙 ※館內設有吸煙區 |
客房設備・生活備品
| 設備 | 採用席夢思公司製造的床具 茶具(煮水壼、茶葉、茶點、冷水) 房間鑰匙 2支 電視 馬桶(西式:電腦馬桶)/冷氣/暖氣/冰箱/保險箱 |
|---|---|
| 生活備品 | 牙刷/洗髮精/潤髮乳/沐浴乳/毛巾/浴巾/吹風機/刮鬍刀/浴衣 |
日式客房
客房配置

- 房間平面圖
-
![房間平面圖]()
| 地點 | 光風閣別館3樓・4樓 |
|---|---|
| 面積 | 日式客房 12半坪(無浴缸) |
| 容納人數 | 6名 |
| 其他 | 所有客房都禁止吸煙 ※館內設有吸煙區 |
客房設備・生活備品
| 設備 | 茶具(煮水壼、茶葉、茶點、冷水) 電視 馬桶(西式:電腦馬桶)/冷氣/暖氣/冰箱/保險箱 |
|---|---|
| 生活備品 | 牙刷/毛巾/浴巾/吹風機/浴衣 |
日西式混合客房
客房配置

- 房間平面圖
-
![房間平面圖]()
| 地點 | 光風閣別館3樓・4樓・6樓 |
|---|---|
| 面積 | 日式客房10半坪+雙床房(有浴缸) |
| 容納人數 | 5名 |
| 其他 | 所有客房都禁止吸煙 ※館內設有吸煙區 |
客房設備・生活備品
| 設備 | 採用席夢思公司製造的床具 茶具(煮水壼、茶葉、茶點、冷水) 電視 馬桶(西式:電腦馬桶)/冷氣/暖氣/冰箱/保險箱 |
|---|---|
| 生活備品 | 牙刷/洗髮精/潤髮乳/沐浴乳/毛巾/浴巾/吹風機/刮鬍刀/浴衣 |
單人房
客房配置

- 房間平面圖
-
![房間平面圖]()
| 地點 | 光風閣別館5樓・6樓 |
|---|---|
| 面積 | 21.6m²(有浴缸) |
| 容納人數 | 1名 |
| 其他 | 所有客房都禁止吸煙 ※館內設有吸煙區 |
客房設備・生活備品
| 設備 | 採用席夢思公司製造的床具 茶具(煮水壼、茶葉、茶點、冷水) 電視 馬桶(西式:電腦馬桶)/冷氣/暖氣/冰箱/保險箱 |
|---|---|
| 生活備品 | 牙刷/毛巾/浴巾/吹風機/浴衣 |
雙床房
客房配置

- 房間平面圖
-
![房間平面圖]()
| 地點 | 光風閣別館5樓・6樓 |
|---|---|
| 面積 | 21.6m²(有浴缸) |
| 容納人數 | 1~2名 |
| 其他 | 所有客房都禁止吸煙 ※館內設有吸煙區 |
客房設備・生活備品
| 設備 | 採用席夢思公司製造的床具 茶具(煮水壼、茶葉、茶點、冷水) 電視 馬桶(西式:電腦馬桶)/冷氣/暖氣/冰箱/保險箱 |
|---|---|
| 生活備品 | 牙刷/毛巾/浴巾/吹風機/浴衣 |
餐廳資訊
| 入住/退房 | 入住 15:00/ 退房 10:00 |
|---|---|
| 客房數 | 90間 |
| 信用卡 | VISA/JCB/American Express/Diner's Club/UC/DC/NICOS/Bank Card/UFJ Card/Master Card/CF/簽帳信用卡 |
關於吸煙區
本館全面禁菸。吸煙時請使用★區域。

料理
金太郎溫泉主要提供使用精美食材的「宴席料理」。

自助式早餐
以日本料理為主,菜色超過50種。
敬請享受富山的美味。
館內設備
交通
「金太郎溫泉」距離北陸新幹線的黑部宇奈月溫泉站,
約10分鐘鐘車程。

| 施設名稱 | 金太郎溫泉 |
|---|---|
| 地址 | 郵遞區號937-0013 富山縣県魚津市天神野新6000 |
| 電話號碼 | +81-765-24-1220 |
- 搭乘電車
來訪的來賓 - 開車
來訪的來賓 - 搭乘飛機
前往時
-
搭乘電車來訪的來賓
-
東京
(約2小時20分鐘)北陸新幹線
2小時14分鐘黑部宇奈月溫泉站
開車
約10分鐘金太郎溫泉
-
大阪
(約4小時)特急雷鳥號列車
2小時31分鐘金澤站
北陸新幹線
約19分鐘黑部宇奈月溫泉站
開車
約10分鐘金太郎溫泉
-
名古屋
(約4小時)新幹線
30分鐘米原站
特急白鷺號列車
2小時31分鐘金澤站
北陸新幹線
約19分鐘黑部宇奈月溫泉站
開車
約10分鐘金太郎溫泉
-
-
開車來訪的來賓
-
東京
(約4小時30分鐘)関越自動車道
約3小時30分鐘藤岡系統交流道
北陸高速公路
約3小時金太郎溫泉
-
大阪
(約4小時)名神高速公路
約1小時30分鐘米原交流道
北陸高速公路
約3小時金太郎溫泉
-
名古屋
(約3小時30分鐘)一宮交流道
東海北陸高速公路
約2小時30分鐘小矢部砺波系統交流道
北陸高速公路
約3小時金太郎溫泉
-
-
搭乘飛機前往時
-
羽田
(約1小時45分鐘)ANA
約65分鐘富山
開車
約40分鐘金太郎溫泉
-
大阪
(約4小時)ANA
約95分鐘富山
開車
約40分鐘金太郎溫泉
-
關於接駁巴士
如果您需要預約接駁巴士服務以外的時間,請與我們聯繫。
北陸新幹線・黑部宇奈月溫泉站
金太郎溫泉
| 黑部宇奈月溫泉站(出發) | 金太郎溫泉(抵達) | |
| 接客 | 15:00 16:00 |
15:10 16:10 |
| 金太郎溫泉(出發) | 黑部宇奈月溫泉站(抵達) | |
| 送客 | 8:30 9:30 10:50 |
8:40 9:40 11:00 |
乘車地點是富山地方鐵道新黑部站的站前廣場。
走出新幹線黑部宇奈月溫泉站的南口之後,可以穿越正前方的斑馬線到對面。
由富山地方鐵道新黑部站來訪的旅客也可以使用。
愛之風富山鐵道魚津站
金太郎溫泉
| 魚津駅(出發) | 金太郎溫泉(抵達) | |
| 接客 | 15:30 | 15:40 |
| 金太郎溫泉(出發) | 魚津駅(抵達) | |
| 送客 | 9:10 10:00 |
9:20 10:10 |
由富山地方鐵道新魚津站來訪的旅客也可以使用。
請由新魚津站的月台走過地下道,前往愛之風富山鐵道魚津站的方向。
北陸新幹線・黑部宇奈月溫泉站
→ 金太郎溫泉
乘車地點是富山地方鐵道新黑部站的站前廣場。
走出新幹線黑部宇奈月溫泉站的南口之後,可以穿越正前方的斑馬線到對面。
-
1
走出驗票口後,往前直走
-
2
走出南口,走過斑馬線,往左轉
-
3
富山地方鐵道新黑部站
接駁巴士將停在站前圓環處等候。
愛之風富山鐵道魚津站
→ 金太郎溫泉
請由新魚津站的月台走過地下道,前往愛之風富山鐵道魚津站的方向。
-
1
走出驗票口後,往前直走
-
2
接駁巴士將停在車站的正前方附近等候。
「富山地方鉄道」新魚津駅
→ 金太郎溫泉
-
1
走出驗票口後,往前直走
-
2
走下樓梯之後請右轉,往「愛之風富山鐵道魚津站」的方向前進,然後直接穿過地下道。
-
3
穿過地下道之後,就是「愛之風富山鐵道魚津站」的站前。
接駁巴士將停在車站的正前方附近等候。
停車場
| 車輛數量 | 大型15台・轎車150台 |
|---|---|
| 費用 | 免費 |
| 地點 | 室外 不需預約 |












查看Google室內地圖





























