위치
도쿄에서 교통편이 좋음. 장대한 스케일을 자랑하는 대욕탕이 자랑인 온천 숙소
알펜루트 관광에 최적인 거점.
호쿠리쿠 신칸센・구로베우나즈키 온천역에서 차로 약 10분 거리에 있는 곳에 위치한 ‘긴타로 온천’.
신기루가 출현하는 땅으로도 유명한 도야마현・우오즈시 주변에는 시나노오마치에서 도야마로 이어지는 다테야마 구로베 알펜루트・구로베 협곡 광차 전차・우나즈키 온천 등 다양한 자연과 관광지로 풍성합니다.
또한 관광하기 좋은 가나자와역까지도 신칸센으로 40분

숙소에서 가까운 추천 관광지
-

벚꽃이 만개한 마쓰카와 유람선
(도야마시) -
![가나자와‘히가시차야 거리’]()
가나자와‘히가시차야 거리’
-

구로베협곡 광차열차
-
![다테야마 구로베 알펜루트‘눈 골짜기’]()
다테야마 구로베 알펜루트
‘눈 골짜기’
쾌적・기분 좋은 공간이 차례로 만들어지고 있습니다.
관내 리뉴얼!
1965년 오픈 이래 시대에 맞추어 변화해온 긴타로 온천.
일본스러움과 양식을 함께 갖춘 새로운 타입의 객실과
컨셉트 다이닝 등
차례로 기분 좋은 공간이 만들어지고 있습니다.
반세기 이상 이어져온 자랑인 온천은 그대로,
리뉴얼 후 쾌적해진 공간에서 여유로운 숙박을 즐길 수 있습니다.
천연온천
원천100%를 그대로 흘려보내 목욕하는 사치.
긴타로 온천은 대지가 끓인 온천수 양이 풍부한 천연온천.
식염천과 유황천이 합해진 국내에서도 보기 드문 온천수 질.
객실
객실에 한 발 들어서면 바깥의 소음을 잊을 수 있는 공간이 펼쳐집니다.
2019년4월에 리뉴얼한 객실도 있어 쾌적하고 평온한 시간을 보내실 수 있습니다.
- 전실 Wi-Fi 완비
금연
객실 타입
- 별채 미네노카이
- 표준 객실
-
한 단계 업그레이드 된 럭셔리 플로어

일본 모던 일본식 객실 침대 타입

노천탕 있는 일본 모던 일본・양식 객실

레인샤워 있는 일본 모던 일본・양식 객실

노천탕 있는 스위트룸

특별실
-
일본여관만의 차분한 공간
![일본식 객실 침대 타입]()
일본식 객실 침대 타입
![일본식 객실]()
일본식 객실
![일본・양식 객실]()
일본・양식 객실
![싱글]()
싱글
![트윈]()
트윈
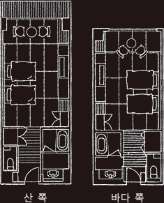
일본 모던 일본식 객실 침대 타입
객실 레이아웃

- 평면도
-
![평면도]()
| 장소 | 고후카쿠 3층 |
|---|---|
| 넓이 | 일본식 객실16조(다다미 세는 단위)(욕실 있음) |
| 정원 | 2~6명 2명까지는 침대. 3명부터는 이불 준비. |
| 기타 | 전실금연 ※관내 흡연 장소 있음 |
객실설비・어메니티
| 설비 | 시몬스사 침대 차 세트(포트, 차, 다과, 냉수) 룸키 2개 TV 화장실(양식:비데)/냉방/난방/냉장고/금고 |
|---|---|
| 어메니티 | 칫솔/샴푸/린스/바디워시/타올/바스타올/드라이어/면도기/유카타(실내용 일본식 의류) |
노천탕 있는 일본 모던 일본・양식 객실
객실 레이아웃

- 평면도
-
![평면도]()
| 장소 | 고후카쿠 4층 |
|---|---|
| 넓이 | 일본식 객실8조(다다미 세는 단위)거실+트윈 침대(노천탕 있음)약43m² |
| 정원 | 4명 |
| 기타 | 전실금연 ※관내 흡연 장소 있음 ※객실 노천탕은 온천이 아닙니다 |
객실설비・어메니티
| 설비 | 시몬스사 침대 차 세트(포트, 차, 다과, 냉수) 룸키 2개 TV 화장실(양식:비데)/냉방/난방/냉장고/금고 |
|---|---|
| 어메니티 | 칫솔/샴푸/린스/바디워시/타올/바스타올/드라이어/면도기/유카타(실내용 일본식 의류) |
레인샤워 있는 일본 모던 일본・양식 객실
객실 레이아웃

- 평면도
-
![평면도]()
| 장소 | 고후카쿠 4층 |
|---|---|
| 넓이 | 일본식 객실8조(다다미 세는 단위)+트윈 침대(샤워룸 있음)약42m² |
| 정원 | 4명 |
| 기타 | 전실금연 ※관내 흡연 장소 있음 |
객실설비・어메니티
| 설비 | 시몬스사 침대 차 세트(포트, 차, 다과, 냉수) 룸키 2개 TV 화장실(양식:비데)/냉방/난방/냉장고/금고 |
|---|---|
| 어메니티 | 칫솔/샴푸/린스/바디워시/타올/바스타올/드라이어/면도기/유카타(실내용 일본식 의류) |
노천탕 있는 스위트룸
객실 레이아웃

- 평면도
-
![평면도]()
| 장소 | 고후카쿠 4층 |
|---|---|
| 넓이 | 일본식 객실12조(다다미 세는 단위)+트윈 침대+거실(노천탕 있음)약87m² |
| 정원 | 6명 |
| 기타 | 전실금연 ※관내 흡연 장소 있음 ※객실 노천탕은 온천이 아닙니다 |
객실설비・어메니티
| 설비 | 시몬스사 침대 차 세트(포트, 차, 다과, 냉수) 룸키 2개 TV 화장실(양식:비데)/냉방/난방/냉장고/금고 |
|---|---|
| 어메니티 | 칫솔/샴푸/린스/바디워시/타올/바스타올/드라이어/면도기/유카타(실내용 일본식 의류) |
특별실
객실 레이아웃

- 평면도
-
![평면도]()
| 장소 | 고후카쿠 4층 |
|---|---|
| 넓이 | 일본식 객실15조(다다미 세는 단위)+트윈 침대+거실(욕실 있음)약84m² |
| 정원 | 6명 |
| 기타 | 전실금연 ※관내 흡연 장소 있음 |
객실설비・어메니티
| 설비 | 시몬스사 침대 차 세트(포트, 차, 다과, 냉수) 룸키 2개 TV 화장실(양식:비데)/냉방/난방/냉장고/금고 |
|---|---|
| 어메니티 | 칫솔/샴푸/린스/바디워시/타올/바스타올/드라이어/면도기/유카타(실내용 일본식 의류) |
일본식 객실 침대 타입
객실 레이아웃

- 평면도
-
![평면도]()
| 장소 | 고후카쿠 별관 5층・6층 |
|---|---|
| 넓이 | 일본식 객실15조(욕실 있음) |
| 정원 | 2~6명 2명까지는 침대. 3명부터는 이불 준비. |
| 기타 | 전실금연 ※관내 흡연 장소 있음 |
객실설비・어메니티
| 설비 | 시몬스사 침대 차 세트(포트, 차, 다과, 냉수) 룸키 2개 TV 화장실(양식:비데)/냉방/난방/냉장고/금고 |
|---|---|
| 어메니티 | 칫솔/샴푸/린스/바디워시/타올/바스타올/드라이어/면도기/유카타(실내용 일본식 의류) |
일본식 객실
객실 레이아웃

- 평면도
-
![평면도]()
| 장소 | 고후카쿠 별관 3층・4층 |
|---|---|
| 넓이 | 일본식 객실 12조(다다미 세는 단위)(욕실 없음) |
| 정원 | 6명 |
| 기타 | 전실금연 ※관내 흡연 장소 있음 |
객실설비・어메니티
| 설비 | 차 세트(포트, 차, 다과, 냉수) TV 화장실(양식:비데)/냉방/난방/냉장고/금고 |
|---|---|
| 어메니티 | 칫솔/타올/바스타올/드라이어/유카타(실내용 일본식 의류) |
일본・양식 객실
객실 레이아웃

- 평면도
-
![평면도]()
| 장소 | 고후카쿠 별관 3층・4층・6층 |
|---|---|
| 넓이 | 일본식 객실10조(다다미 세는 단위)+트윈 침대(욕실 있음) |
| 정원 | 5명 |
| 기타 | 전실금연 ※관내 흡연 장소 있음 |
객실설비・어메니티
| 설비 | 시몬스사 침대 차 세트(포트, 차, 다과, 냉수) TV 화장실(양식:비데)/냉방/난방/냉장고/금고 |
|---|---|
| 어메니티 | 칫솔/샴푸/린스/바디워시/타올/바스타올/드라이어/면도기/유카타(실내용 일본식 의류) |
싱글
객실 레이아웃

- 평면도
-
![평면도]()
| 장소 | 고후카쿠 별관 5층・6층 |
|---|---|
| 넓이 | 21.6m²(욕실 있음) |
| 정원 | 1명 |
| 기타 | 전실금연 ※관내 흡연 장소 있음 |
객실설비・어메니티
| 설비 | 시몬스사 침대 차 세트(포트, 차, 다과, 냉수) TV 화장실(양식:비데)/냉방/난방/냉장고/금고 |
|---|---|
| 어메니티 | 칫솔/타올/바스타올/드라이어/유카타(실내용 일본식 의류) |
트윈
객실 레이아웃

- 평면도
-
![평면도]()
| 장소 | 고후카쿠 별관 5층・6층 |
|---|---|
| 넓이 | 21.6m²(욕실 있음) |
| 정원 | 1~2명 |
| 기타 | 전실금연 ※관내 흡연 장소 있음 |
객실설비・어메니티
| 설비 | 시몬스사 침대 차 세트(포트, 차, 다과, 냉수) TV 화장실(양식:비데)/냉방/난방/냉장고/금고 |
|---|---|
| 어메니티 | 칫솔/타올/바스타올/드라이어/유카타(실내용 일본식 의류) |
인포메이션
| 체크인/체크아웃 | 체크인 15:00/ 체크아웃 10:00 |
|---|---|
| 객실数 | 90室 |
| 신용카드 | VISA/JCB/American Express/Diner's Club/UC/DC/NICOS/Bank Card/UFJ Card/Master Card/CF/체크카드 |
흡연 코너에 대해
관내는 전면 금연입니다. 흡연 시에는 ★코너를 이용해 주시기 바랍니다.

객실
긴타로 온천에서는 훌륭한 재료를 살린 ‘가이세키(일식) 요리’를 중심으로 제공하고 있습니다.

조식 뷔페
일식을 중심으로한 메뉴 전체 50종류 이상.
도야마의 맛을 마음껏 맛보시기 바랍니다.
관내 시설
교통 안내
호쿠리쿠 신칸센 구로베우나즈키 온천역에서 차로 약 10분

| 시설명 | 긴타로 온천 |
|---|---|
| 소재지 | 우편번호 937-0013 도야마현 우오즈시 덴진노신 6000 |
| 전화번호 | +81-765-24-1220 |
- 전철 이용
- 자가용 이용
- 비행기 이용
-
전철 이용
-
도쿄
(약2시간 20분)호쿠리쿠 신칸센
2시간 14분구로베우나즈키 온천역
자가용
약10분긴타로 온천
-
오사카
(약4시간 )특급 선더버드
2시간 31분가나자와 역
호쿠리쿠 신칸센
약19분구로베우나즈키 온천역
자가용
약10분긴타로 온천
-
나고야
(약4시간 )신칸센
30분마이바라 역
특급 시라사기
2시간 31분가나자와 역
호쿠리쿠 신칸센
약19분구로베우나즈키 온천역
자가용
약10분긴타로 온천
-
-
자가용 이용
-
도쿄
(약4시간 30분)간에쓰 자동차도
약3시간 30분후지오카 JCT
호쿠리쿠 자동차도
약3시간긴타로 온천
-
오사카
(약4시간 )메이신 자동차도
약1시간 30분마이바라 IC
호쿠리쿠 자동차도
약3시간긴타로 온천
-
나고야
(약3시간 30분)이치노미야 IC
도카이호쿠리쿠 자동차도
약2시간 30분오야베토나미 JCT
호쿠리쿠 자동차도
약3시간긴타로 온천
-
-
비행기 이용
-
하네다
(약1시간 45분)ANA
약65분도야마
자가용
약40분긴타로 온천
-
오사카
(약4시간 )ANA
약95분도야마
자가용
약40분긴타로 온천
-
셔틀버스
셔틀버스 외 시간을 희망하실 경우 문의해 주시기 바랍니다.
호쿠리쿠 신칸센・구로베우나즈키 온천역
긴타로 온천
| 구로베우나즈키 온천역(발) | 긴타로 온천(착) | |
| 맞중 | 15:00 16:00 |
15:10 16:10 |
| 긴타로 온천(발) | 구로베우나즈키 온천역(착) | |
| 배웅 | 8:30 9:30 10:50 |
8:40 9:40 11:00 |
승차 장소는 도야마지방철도・신쿠로베역의 역앞광장입니다.
신칸센・구로베우나즈키 온천역에서 남쪽출구로 나와서 정면 횡단보도를 건너면 이용하실 수 있습니다.
도야마지방철도・신쿠로베 역에서 나오신 손님도 이용하실 수 있습니다.
아이노카제 토야마철도・우오즈역
긴타로 온천
| 우오즈역(발) | 긴타로 온천(착) | |
| 맞중 | 15:30 | 15:40 |
| 긴타로 온천(발) | 우오즈역(착) | |
| 배웅 | 9:10 10:00 |
9:20 10:10 |
도야마지방철도・신우오즈역에서 내리신 손님도 우오즈역 셔틀버스를 이용하실 수 있습니다.
신우오즈역 승강장에서 지하도를 나오시면 아이노카제 토야마철도・우오즈역 쪽으로 이동하시기 바랍니다.
호쿠리쿠 신칸센・구로베우나즈키 온천역
→ 긴타로 온천
승차 장소는 도야마지방철도・신쿠로베역의 역앞광장입니다.
신칸센・구로베우나즈키 온천역에서 남쪽출구로 나와서 정면 횡단보도를 건너면 이용하실 수 있습니다.
-
1
개찰구 나와서 직진
-
2
남쪽 출구를 나와서 횡당보도를 건너 왼쪽으로
-
3
도야마地方・新黒部駅
역 앞 로터리에 셔틀버스가 정차합니다.
아이노카제 토야마철도・우오즈역
→ 긴타로 온천
신우오즈역 승강장에서 지하도를 나오시면 아이노카제 토야마철도・우오즈역 쪽으로 이동하시기 바랍니다.
-
1
개찰구 나와서 직진
-
2
역 정면 부근에 셔틀버스가 정차합니다.
‘도야마지방철도’ 신우오즈역
→ 긴타로 온천
-
1
개찰구 나와서 직진
-
2
계단을 내려와서 오른쪽으로 ‘아이노카제 토야마철도・우오즈역’ 쪽으로 걸어서 그대로 지하도를 나옵니다.
-
3
지하도를 나오면 ‘아이노카제 토야마철도・우오즈역’ 역앞입니다.
역 정면 부근에 셔틀버스가 정차합니다.
주차장
| 대수 | 대형 15대・승용차 150대 |
|---|---|
| 요금 | 무료 |
| 장소 | 屋外 予약不要 |









Google인도어뷰 보기





























